Historisk industribyggnad för revitalisering

Piotrków Trybunalski, Sulejowska, województwo łódzkie, Polen

1 295 100 EUR
  1. PLN 5 500 000
  1. Historiskt hem
  2. Byggnadsår 1896
  3. Byggnadsminnesmärkt
  4. 2 969 m² Total yta
  5. 14 083 m² Tomtstorlek
  6. 30 Rum

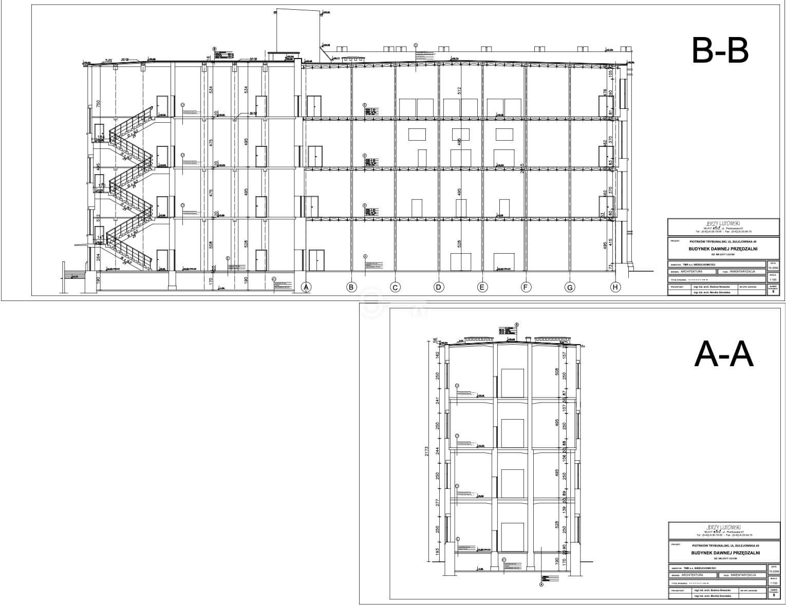
Piotrkowska Manufaktura är en tidigare textilfabrik och en fyra våningar hög industribyggnad med kulturhistoriskt skydd, indelad i tre sektioner: produktionshall, kontors- och personalflygel samt en utbyggd östflygel. Originalhisschakt och ståltrappor är bevarade, vilket bibehåller byggnadens autentiska karaktär.

Byggnaden uppfördes omkring 1900 och har en karakteristisk tegelstensfasad som ger en autentisk miljö för olika revitaliseringsprojekt. Lokalerna kan anpassas för loftkontor och coworking, kreativa centra, gallerier och eventlokaler, högkvalitativa lägenheter i industrial-chic stil eller som flaggskeppsplatser för tjänste- eller kulturvarumärken.

Liknande industriprojekt på jämförbara platser har väckt stort intresse bland hyresgäster och investerare. De rymliga, pelarfria ytorna kan enkelt delas in i hallar och kontorsområden, och cirka 11 000 m² sammanhängande användbar yta utgör ett sällsynt erbjudande i detta område och region.

Läget i Piotrków Trybunalski centrum erbjuder utmärkta strategiska kommunikationer. Motorväg A1 och motorväg S8 nås på några minuter med bil. Omgivningarna omfattar industriområden, kommersiella zoner och bostadsområden, vilket garanterar en naturlig tillgång på personal och kunder.

Möjliga investeringskoncept inkluderar uthyrning som lager och produktionslokaler, långtidsuthyrning av kontor eller ombyggnad av delar av byggnaden till korttidsuthyrning eller loft.

Mer information: Piotrkowska Manufaktura på Wikipedia.

Ritningar

Karaktär och egenskaper

Byggnadsskick
Renoveringsprojekt
Arkitektur
Historism
Arkitekturdetaljer
Torn
Byggteknik och fasad
Fristående byggnad Tegelfasad
Juridisk information

Fastighetsbyrå

Partners International

Fort Piłsudskiego 2

02-704 Warszawa

Polen
Direktör
Joanna Czapska
Kontakt
Fast telefoni: +48 22 646 52 02
Prenumerera på Partners International

Få nya försäljningserbjudanden från denna fastighetsmäklare via e-post. E-postaviseringen kan avaktiveras när som helst.

  • REALPORTICO-ID
    2804100
  • Senast ändrad
    Förra månaden
  • Visningar
    778
  • Personer nådda
    671
Top 10 länder för denna historiska egendom
Visningar senaste 30 dagarna

Partners International

Se fler historiska fastigheter

Luberadz, województwo mazowieckie
Klassicistisk herrgård norr om Warszawa
Poznań, województwo wielkopolskie
Lägenhet i historisk byggnad i Poznań
Wrocław, województwo dolnośląskie
Lägenhet med karaktär i renoverad fastighet i Wrocław