Terraced House in Switzerland - Village Centre of Frick (between Basel and Zürich)

5070 Frick, Aargau, Švajčiarsko

920 100 EUR
  1. CHF 850'000
  2. Cena dohodou
  1. Vidiecky dom
  2. Rok výstavby 1600
  3. Posledná modernizácia 2018
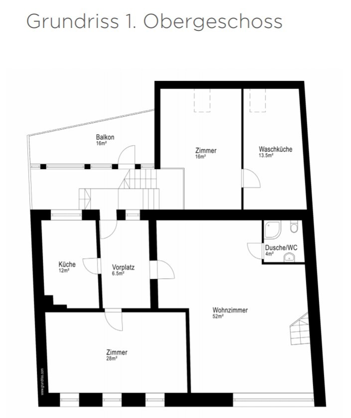
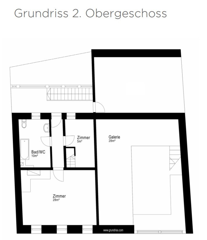
  4. 315 m² Celková plocha
  5. 280 m² Obytná plocha
  6. 6 Izby
  7. 3 Spálne
  8. 3 Kúpeľne
  9. 4 Podlažia

This charming historic terraced house in the centre of Frick (5070) combines authentic Swiss character with modern potential. 
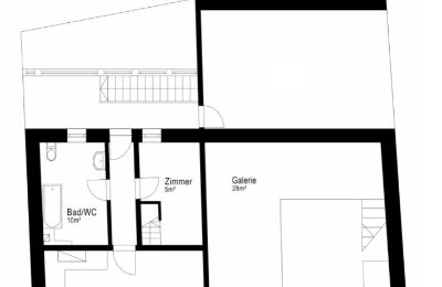
It’s ideal for multi-generation living or for those who wish to combine living and working – the converted former barn section can be used as an atelier, studio, or small business space

The property is divided into two connected sections

One part is fully usable and move-in ready, with a bright living room, kitchen, three bedrooms, and two bathrooms. 

The corridor and adjoining area require renovation, giving the buyer the freedom to finish it to personal taste. 

Highlights 

Central yet quiet village location

Shops, train station, bus stop, kindergarten, and schools all within walking distance.

Motorway exit (A3) nearby – quick access to Basel and Zürich

Former barn area with impressive 4-metre-high ceilings – ideal for atelier / studio / office 

Unique open layout with generous living space

Small, easy-to-maintain garden

Quiet west-facing balcony with afternoon sun

Parking for three vehicles: covered carports for two cars + one open guest space

This property offers historic charm, flexibility, and excellent accessibility — a rare opportunity to live and work under one roof in a convenient and family-friendly Swiss location.

Pôdorysy

Právne informácie

Súkromný poskytovateľ
Eszter Julianna Biro
Fő tér 15
9330 Kapuvár
HU
Kontakt
Súkromný poskytovateľ
Vzhľadom na nastavenie ochrany súkromia inzerenta sa osobné údaje nezobrazujú. Na nadviazanie kontaktu využite náš formulár.
  • REALPORTICO-ID
    2618500
  • Čas poslednej úpravy
    Pred 6 mesiacmi
Reklama

Aargau Vidiecky dom

Zostaňte informovaní o nových historických nehnuteľnostiach v tomto regióne.