Kaštieľ v pohraničnej oblasti Maďarsko-Rakúsko s parkom o rozlohe 5 hektárov

Tömörd, Fő utca 11, Župa Vas, Maďarsko

EUR 850.000
  1. Kaštieľ
  2. Rok výstavby 1780
  3. Pamiatková ochrana
  4. 600 m² Celková plocha
  5. 300 m² Obytná plocha
  6. 50 000 m² Pozemok
  7. 2 Podlažia

Kaštieľ v Tömörd, postavený okolo roku 1780 György Chernelom, je pamiatkovo chránenou stavbou neskorého baroka s klasicistickými prvkami. Trojpodlažná tehlová budova sa nachádza v parku s rozlohou približne 5 hektárov so starými stromami, 9 km od rakúskej hranice a v blízkosti Szombathely.

Od roku 2017 prešiel exteriér budovy obnovou: strešná konštrukcia a krytina boli vymenené, fasáda zrekonštruovaná, okná a dvere boli vyrobené na mieru v pôvodnom štýle, vykonaná hydroizolácia sokla a dokončená prístupová cesta z prírodného kameňa. V interiéri je k dispozícii reprezentatívne hlavné podlažie s drevenými trámovými stropmi a podkrovný priestor s plochou cca 210 m² vhodný na dostavbu. Existuje schválený projekt obnovy a využitia: pivnica ako reštaurácia a podkrovie ako apartmány.

Lokalita: Tömörd, Vas vármegye, západné Maďarsko. 9 km od rakúskej hranice, v blízkosti kúpeľného mesta Bük.

Súčasťou kúpy je právne zastrešenie v nemeckom jazyku, kontrola katastra nehnuteľností a podpora pri prepise zmlúv na energie.

Poznámka: časť obrázkov predstavuje ilustračné vizualizácie vytvorené umelou inteligenciou.

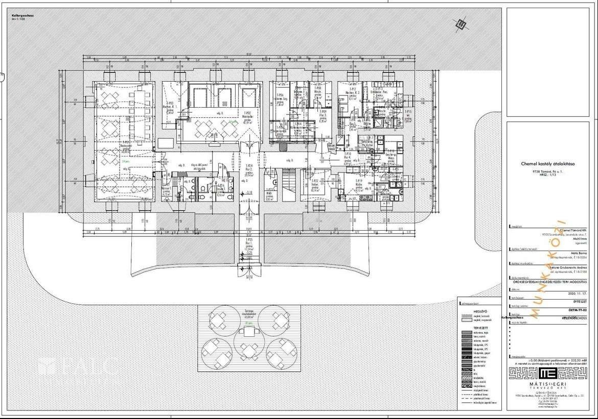
Pôdorysy

Charakter a vlastnosti

Stav
Čiastočne zrekonštruovaný Renovačný projekt
Lokalita
Tichá lokalita
Výhľad
Výhľad na park
Architektonický sloh
Barokový Klasicistický
Vlastnosti pozemku
Rozsiahla nehnuteľnosť Záhrada Park
Konštrukčný systém a fasáda
Voľne stojaca budova Suterén
Palivo
Plyn
Stav výstavby
Plyn
Právne informácie

Realitná kancelária
Riaditeľ
Andreas Laarmann
Informácie o spoločnosti
Súd: Amtsgericht Siegburg HRA 5518
Dohľadový orgán
Rhein-Sieg-Kreis, Dezernat 5 - Rechts- und Ordnungsamt, Kaiser-Wilhelm-Platz 1, 53721 Siegburg
Kontakt
Pevná linka: 02242 - 90 10 3-0
Webová stránka: http://www.falcimmo.de
Číslo ponuky FALC-DoWo-84108R
Zavolať (Mobilný)

Právne informácie

  • REALPORTICO-ID
    2855941
  • Čas poslednej úpravy
    Dnes
  • Zobrazenia stránky
    -
  • Oslovení ľudia
    -

FALC Real Estate Ungarn West

Objavte ďalšie historické objekty

Escorca, Baleárijské ostrovy
Španielsky kaštieľ zo 16. storočia v Escorce
Campos, Baleárijské ostrovy
Prestížna historická mestská rezidencia v Campos, Mallorca
39576 Stendal, Sachsen-Anhalt
Kaštieľ Vinzelberg v regióne Altmark

Tömörd Kaštieľ

Zostaňte informovaní o nových historických nehnuteľnostiach v tomto regióne.