Fotky Historická samostatná vila v Intra s privátnou záhradou

Verbania Historická vila na predaj

Historická samostatná vila v Intra s privátnou záhradou

Verbania, Via della Resistenza, Piemont, Taliansko

EUR 620.000
  1. Provízia pre makléra 3,5%
  1. Historická vila
  2. Rok výstavby 1900
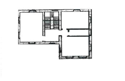
  3. 287 m² Celková plocha
  4. 680 m² Pozemok
  5. 8 Izby
  6. 6 Spálne
  7. 3 Kúpeľne
  8. 3 Podlažia

Len pár krokov od centra Intra a brehu jazera sa ponúka táto historická samostatná vila z konca 19. storočia, zachovaná do značnej miery v pôvodnom stave. Štyri poschodia pozostávajú z priestranných a svetlých miestností spojených širokým schodiskom.

Na prízemí sa nachádza vstupná hala, niekoľko izieb s krbmi, kuchyňa s jedálňou a technická miestnosť.

Hlavné spálne sú na prvom poschodí a zahŕňajú veľkú hlavnú spálňu s vlastnou kúpeľňou, dve ďalšie spálne a druhú kúpeľňu. Prerobené podkrovie ponúka ďalšie tri izby a kúpeľňu, vhodné ako hosťovské izby, pracovňa alebo hobby miestnosť.

V suteréne sú dve miestnosti s klenutými stropmi, vrátane kotolne.

Vila si zachováva architektonické detaily a pôvodné materiály, čo umožňuje konzervatívnu rekonštrukciu. Hlavný vchod je reprezentatívne riešený.

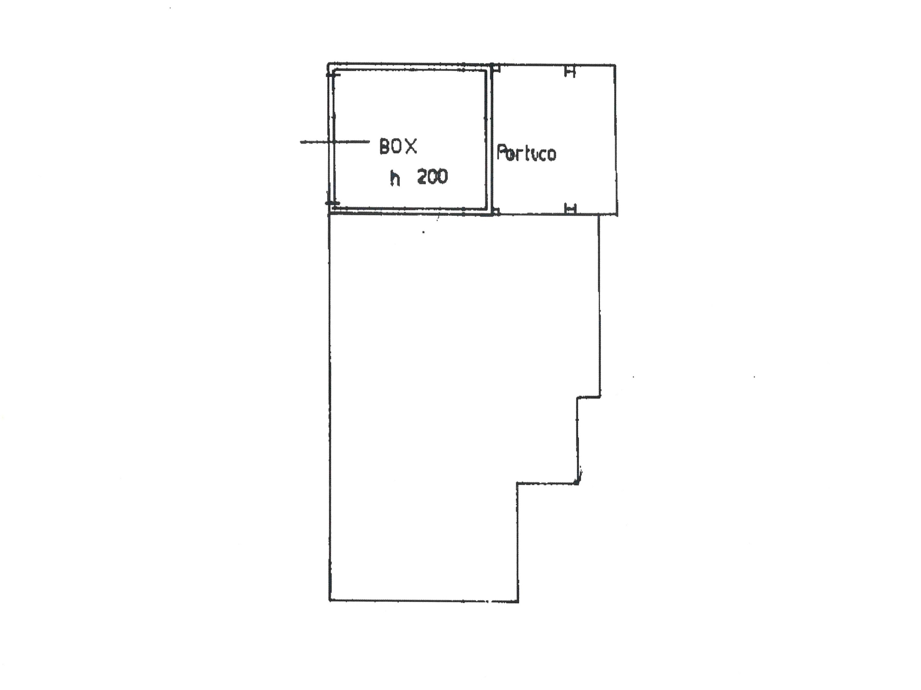
Nehnuteľnosť zahŕňa súkromnú záhradu a garáž.

Vzdialenosti:

  • Centrum Intra – pešo
  • Breh jazera – pešo
  • Verbania – pár minút
  • Miláno – cca 1 h 30 min
  • Letisko Malpensa (MXP) – cca 1 h

Pôdorysy

Právne informácie

Realitná kancelária

Città Ideale

Corso Mameli 203

28921 Verbania Intra

Taliansko
Kontakt
Pevná linka: +39 0323 407435
Prihlásiť sa na odber Città Ideale

Získajte nové ponuky nehnuteľností od tohto realitného makléra prostredníctvom e-mailu. Upozornenia môžete kedykoľvek deaktivovať.

  • REALPORTICO-ID
    2795073
  • Čas poslednej úpravy
    minulý mesiac
  • Zobrazenia stránky
    1.18k
  • Oslovení ľudia
    990
Táto nehnuteľnosť oslovuje najviac ľudí v týchto krajinách
Zobrazenia posledných 30 dní

Città Ideale

Objavte ďalšie historické objekty

28824 Oggebbio, Piemont
Historická nehnuteľnosť s výhľadom na Jazero Maggiore v Oggebbio
28823 Ghiffa, Piemont
Zrekonštruovaný historický dom s tromi bytovými jednotkami a výhľadom na jazero
28823 Ghiffa, Piemont
Historická vila v Ghiffe pri jazere Maggiore